

产品概述
特点/Feature
﹒标配液晶显示控制器,五米电缆线控,嵌入式电控箱,更省空间;
﹒高效节能直驱空调离心风机,国内知名品牌,高静压,风机效率高达75%以上,内壁密封贴合消音保温棉,噪音更低;
﹒ABS框架六边形逆流式机芯,高分子纳米防霉抗菌膜片,使用寿命长达20年以上,热交换效率高达65%以上;
﹒机身为钣金或铝合金框架,喷塑工艺,高端大气上档次,牢固耐用,吊顶安装;
﹒新排风双侧内置初效尼龙网过滤器,可水洗、零耗材;单侧检修,更换自如,维护成本更低;
标配触摸屏新风智能控制器
液晶数显智能新风控制器,可以选择手动控制或定时控制新风机的运行,控制器输出信号直接控制新风机的启动及转速,可广泛应用于住宅、商业及工业场合,并且能有效改善空气品质,创造健康、舒适、高效、环保、节能的生活工作环境。 |
| 产品特点: 1、大液晶显示各种状态,电容感应触摸按键操作,方便快捷。 2、断电记忆功能,上电自动恢复断电前工作状态。 3、白色液晶背光源,方便夜间操作。 4、实时时钟显示,方便时间查看,可定时开关机。 |
按键功能说明:
| ![]() | 操作说明: 1、开关机:短按“ 2、风速调整:短按“ 3、定时功能:长按“ 4、童锁功能:同时按下“ |
热交换能量回收工作原理
全热回收机芯
WASSI-Ⅲ是沃森公司采用逆流结构技术研制成功的新一代能量回收模块化机芯,与传统的交叉流热回收机芯相比,WASSI-Ⅲ各项性能参数均获得了较大提高和改善,而且在使用上也更加灵活方便。 | ![]() |
![]() | ·换热效率高: 采用先进的逆流结构设计,空气在模块中的换热时间得到加长,而条格形的通风孔道大大增加了换热面积,所以WASSI-Ⅲ的换热效率比交叉流机芯提高了5%~10%。 能量回收无污染: 全热型采用高分子材料制成的纳米微孔换热膜片,导热透湿性佳,气密安全性好,全热回收而不污染新风。显热型采用优质铝箔制成,具有耐腐蚀、耐高温特性,温度交换效率极高。 外形紧凑小巧: 六边形外形降低了模块厚度,特殊的通风孔道可以使模块比交叉流机芯做得更短。 使用寿命长: 采用ABS框架结构,坚固耐用,使用寿命比交叉流机芯增加了一倍。 组合方便: 多种模块组合形式,可以根据机型需要选择最佳配置。 性能稳定、无需清洁: WASSI-Ⅲ模块通风孔道的流线设计,能有效防止着尘,在前置初效过滤器的情况下,可以保持换热效率的长期稳定,并省去了交叉流机芯定期清洁的麻烦。 |
![]() | |
![]() |
![]() | ![]() |

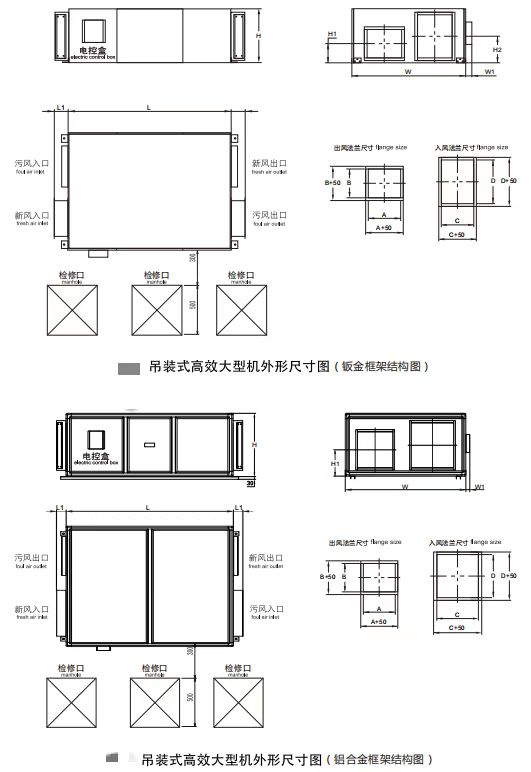
机组外形尺寸图

机组外形尺寸表
型 号 Model No. | L | L1 | W | W1 | H | H1 | AxB | CxD |
| CHA(B)-D2000S | 1300 | 100 | 930 | 55 | 480 | 170 | 280x250 | 250x380 |
| CHA(B)-D2500S | 1300 | 100 | 930 | 55 | 480 | 170 | 280x250 | 250x380 |
| CHA(B)-D3000S | 1480 | 100 | 1155 | 55 | 580 | 170 | 350x270 | 400x450 |
| CHA(B)-D4000S | 1480 | 100 | 1155 | 55 | 580 | 170 | 350x270 | 400x450 |
| CHA(B)-D5000S | 1600 | 100 | 1450 | 55 | 620 | 205 | 400x320 | 500x470 |
| CHA(B)-D6000S | 1850 | 100 | 1705 | 55 | 700 | 320 | 500x400 | 600x500 |
| CHA(B)-D8000S | 1850 | 100 | 1705 | 55 | 700 | 320 | 500x400 | 600x500 |
性能参数表
| 型 号 Model No. | 风 量 (m³/h) | 机外静压 (Pa) | 焓交换收率(%) | 温度交换收率 (%) | 噪 音 dB(A) | 额定电压 (V) | 额定功率 (W) | 重 量 (Kg) | |
| 制冷 | 制热 | ||||||||
| CHA-D1500S(M) | 1500 | 200 | 66 | 69 | 52 | 380 | 0.74 | 115 | |
| CHB-D1500S(M) | 1500 | 200 | 75 | 52 | 380 | 0.74 | 115 | ||
| CHA-D2000S | 2000 | 200 | 65 | 70 | 53 | 380 | 0.9 | 121 | |
| CHB-D2000S | 2000 | 200 | 75 | 53 | 380 | 0.9 | 121 | ||
| CHA-D2500S | 2500 | 200 | 66 | 69 | 56 | 380 | 1.1 | 125 | |
| CHB-D2500S | 2500 | 200 | 76 | 56 | 380 | 1.1 | 125 | ||
| CHA-D3000S | 3000 | 230 | 65 | 68 | 56 | 380 | 1.1 | 155 | |
| CHB-D3000S | 3000 | 230 | 75 | 56 | 380 | 1.1 | 155 | ||
| CHA-D4000S | 4000 | 260 | 66 | 69 | 61 | 380 | 1.5 | 158 | |
| CHB-D4000S | 4000 | 260 | 76 | 61 | 380 | 1.5 | 158 | ||
| CHA-D5000S | 5000 | 280 | 65 | 68 | 65 | 380 | 3.0 | 245 | |
| CHB-D5000S | 5000 | 280 | 75 | 65 | 380 | 3.0 | 245 | ||
| CHA-D6000S | 6000 | 300 | 66 | 69 | 66 | 380 | 3.6 | 280 | |
| CHB-D6000S | 6000 | 300 | 76 | 66 | 380 | 3.6 | 280 | ||
| CHA-D8000S | 8000 | 300 | 65 | 69 | 68 | 380 | 4.4 | 340 | |
| CHB-D8000S | 8000 | 300 | 76 | 68 | 380 | 4.4 | 340 | ||
注:6000m³/h风量以上型号为铝合金框架结构,5000m³/h风量以下型号为钣金框架结构。
安装示意图


400-628-1208 











